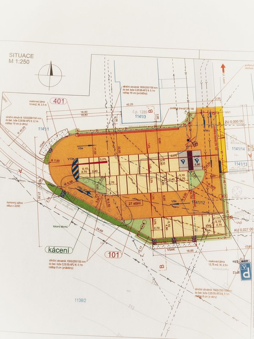
Na sídlišti v Lesní ulici ve Frýdlantu vznikne na jaře nové parkoviště s 27 parkovacími místy. Jeho stavba má být zahájena už 21. března 2022. Město Frýdlant prosí všechny obyvatele sídliště o součinnost a toleranci během stavebních prací. Především o využívání provizorně zřízených parkovacích stání, která kapacitně uleví stávajícímu prostoru pro parkování.
„Prosíme všechny obyvatele sídliště v Lesní ulici, aby během stavby nového parkoviště na konci sídliště nad svahem u fotbalového stadionu, využívali k parkování dočasně zřízené stání na starém hřišti nad garážemi. Apelujeme na řidiče, aby svá vozidla neparkovali v místě průjezdu na stavbu a to nejen z důvodu blokování stavebních strojů a nákladních automobilů, ale i z důvodu ochrany vlastních automobilů,“ vysvětluje starosta Frýdlantu Jiří Stodůlka.Zároveň také vyzývá k opatrnosti při pohybu na sídlišti během stavby. Provizorní parkoviště bude stejně jako průjezd ke stavbě označeno dopravní značkou. Po ukončení stavby pak bude hřiště vráceno do původního stavu.
Na parkovišti v Lesní ulici vznikne na jaře 27 nových parkovacích míst.“ Stavební práce mají začít 21. března a potrvají zhruba 3 měsíce. Celkem přijde vznik nového parkoviště městský rozpočet na zhruba 2 miliony korun,“ dodává Kateřina Korečková z investičního oddělení Městského úřadu Frýdlant.
Nové parkoviště vyřeší v Lesní ulici kritickou situaci s nedostatkem parkovacích míst a zvýší také bezpečnost na něm. V současné době je totiž běžným jevem, že pokud některý z řidičů zaparkuje na místě na otáčení, nemá se v této ulici, která je v podstatě slepá, kde otočit sanitka a nedostanou se tam ani hasiči. To se po zbudování nového parkoviště změní.
Město Frýdlant se vznikem parkoviště v Lesní ulici intenzivně zabývá už od roku 2018, kdy mělo původně na podzim vzniknout. „Jeho zbudování ale zkomplikovaly, o více než tři roky odsunuly a v konečném důsledku také o 550 tisíc prodražily námitky několika občanů, kteří využili všech zákonných prostředků, aby jeho stavbě zabránili. Nakonec ale dotčené orgány a úřady rozhodly, že námitky proti vybudování parkoviště nejsou relevantní a parkoviště v Lesní ulici vzniknout může,“ uzavírá starosta Frýdlantu.
Zdroj: Martina Petrášková, tisková mluvčí města Frýdlant.
Malí umělci ovládli náves. Kunratická paleta oslavila své dvacetiny / Fotoreportáž
V pátek 8. května od 10 hodin ožila kunratická náves dětskými kresbami, barvami a dobrou náladou. Proběhl jubilejní 20. ročník oblíbené výtvarné akce Kunratická paleta, které se letos zúčastnilo celkem 20 malých umělců. Ani chladnější počasí neodradilo pořadatele,...
Pálení čarodějnic v Minkovicích nabídlo lampionový průvod i večer plný masek / Fotoreportáž
Také v Minkovicích se poslední dubnový večer nesl ve znamení tradičního pálení čarodějnic. Místní akce přilákala řadu rodin s dětmi i dalších návštěvníků a nabídla pohodovou atmosféru, hry pro děti i večerní zapálení vatry. Už během podvečera zaplnily areál děti v...
Pálení čarodějnic v Předláncích přineslo tradiční sousedské setkání / Fotoreportáž
Na poslední dubnový večer připravili hasiči v Předláncích tradiční pálení čarodějnic. Do místního parku dorazili malí i velcí návštěvníci a nechyběly nejen děti v čarodějnických maskách a kostýmech, které dodaly celé akci tu správnou atmosféru. Večer se nesl především...
Pálení čarodějnic v Lázních Libverda nabídlo průvod masek, vatru i fireshow / Fotoreportáž
Poslední dubnový večer patřil v Lázně Libverda tradičnímu pálení čarodějnic. Akce se konala ve čtvrtek 30. dubna na fotbalovém hřišti a nabídla program pro děti i dospělé, živou hudbu, oheň i večerní fireshow. Program odstartoval už v 17:30, kdy od mateřské školky...
CiS systems, s. r. o. přijme pracovníka IT Client Service a Help Desk
CiS systems s.r.o. je již téměř 30 let inovativním a úspěšným rodinným podnikem v Jizerských horách a je dle auditorské společnosti Intertek-London roky jedním z nejlepších zaměstnavatelů v celosvětovém srovnání. Vyvíjíme a vyrábíme specifická řešení kabelové konfekce...
CiS systems, s. r. o. přijme do svého týmu seřizovače
CiS systems s.r.o. je již téměř 30 let inovativním a úspěšným rodinným podnikem v Jizerských horách a je dle auditorské společnosti Intertek-London roky jedním z nejlepších zaměstnavatelů v celosvětovém srovnání. Vyvíjíme a vyrábíme specifická řešení kabelové konfekce...
Nové železniční spojení přes Frýdlant? Pro region se rýsuje šance, která může změnit každodenní dopravu
Jednání polských samospráv s náměstkem polského ministra infrastruktury Piotrem Malepszakem, které proběhlo 17. dubna v Jelení Hoře, přineslo konkrétní obrysy budoucnosti dopravy v česko-polském pohraničí. Na schůzce zaznělo téma, které se přímo dotýká Frýdlantska....
Páté výročí zápisu Jizerskohorských bučin na Seznam světového dědictví UNESCO
Jizerskohorské bučiny, klenot přírodní krásy v srdci Libereckého kraje, slaví 5. výročí od svého zápisu na prestižní Seznam světového dědictví UNESCO. Tato příležitost představuje výjimečnou událost pro region, který se může pyšnit unikátním přírodním bohatstvím a...
CiS systems, s. r. o. přijme zaměstnance na pozici Technical Sales
CiS systems s.r.o. je již téměř 30 let inovativním a úspěšným rodinným podnikem v Jizerských horách a je dle auditorské společnosti Intertek-London roky jedním z nejlepších zaměstnavatelů v celosvětovém srovnání. Vyvíjíme a vyrábíme specifická řešení kabelové konfekce...



















































